1、首先在电脑上找到并点击UG NX 10.0软件,点击进入UG10.0。

2、在主页板块点击新建字样,新建一个模型,如下图所示。

3、在新建界面中,选择模型板块,单位栏选择毫米,选择下面列表中的第一个,然后点击确定按钮。

4、在建模板块界面中,点击左侧的草图按钮,如下图所示。

5、在创建草图界面中,点击草图平面板块下面的十字按钮,然后选择坐标系的XY平面,之后点击确定,如图。

6、在建模界面左侧,直接草图栏中点击直线图标,直线输入模式选择参数模式,然鼠标点击坐标原点,长度栏输入8,角度栏输入180,之后点击Enter。如图。

7、在建模界面左侧,直接草图栏中点击直线图标,直线输入模式选择参数模式,然鼠标点击坐标原点,长度栏输入8,角度栏输入0,之后点击Enter。如图。

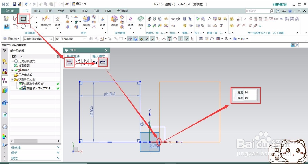
8、在建模界面左侧,直接草图栏中点击矩形图标,矩形方法用按2点法,输入模式选择参数模式,然鼠标点击点(-8,0),高度栏输入50,宽度栏输入50,之后点击Enter。如图。

9、在建模界面左侧,直接草图栏中点击矩形图标,矩形方法用按2点法,输入模式选择参数模式,然鼠标点击点(8,0),高度栏输入50,宽度栏输入50,之后点击Enter。如图.

10、在建模界面左侧,直接草图栏中点击直线图标,直线输入模式选择参数模式,然鼠标点击点(8,50),长度栏输入16,角度栏输入90,之后点击Enter。如图。

11、对十字路口的数值模拟分析过程分为四个部分:本部分为第一部分《如何使用UG10.0软件建立十字路口模锸责氧铼型》。第一部分分为四篇发出来。此篇为:《如何使用UG10.0软件建立十字路口模型(1/4)》下一篇:《如何使用UG10.0软件建立十字路口模型(2/4)》